1 OF 12
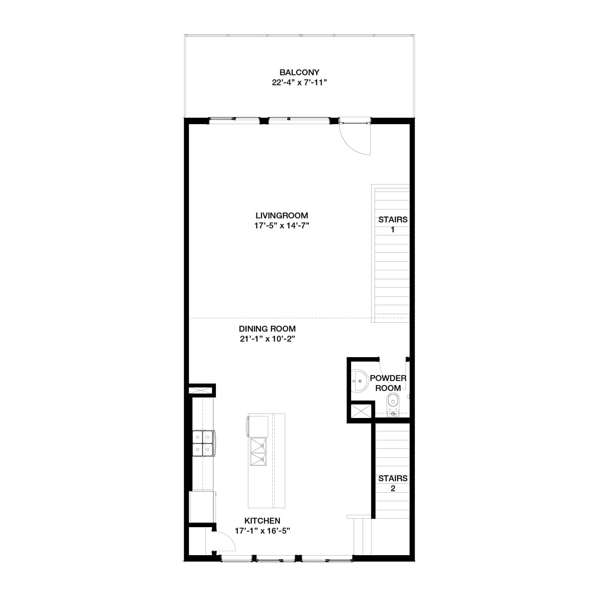
Stanley Walkout with Rooftop Plan
Townhome
2,258 ft ²
3beds
3
baths
With skyline views and unique layouts, many homes feature rooftop and walk-out patios to maximize outdoor living space. The modern design of Crown Park’s two and three-bedroom Urban Rowhomes announce three-level living with one or two-car garages. Flexibility is built-in with adaptable spaces for gym, office, hobby room, or an additional bedroom on select walk-out units.
With skyline views and unique layouts, many homes feature rooftop and walk-out patios to maximize outdoor living space. The modern design of Crown Park’s two and three-bedroom Urban Rowhomes announce three-level living with one or two-car garages. Flexibility is built-in with adaptable spaces for gym, office, hobby room, or an additional bedroom on select walk-out units.Read More
Facts & features
Stories:
3-story
Parking/Garage:
2-1
Feel Right at Home
Showhome 3D Walkthroughs
Floor Plan & ExteriorPersonalization OptionsGet a head start on your dream home with our interactive home visualizer - configure everything from the scructural options to selecting finishes.
Meet your new neighborhood











