1 OF 12
Harebell Plan
Townhome
1,407 ft ²
3beds
3
baths
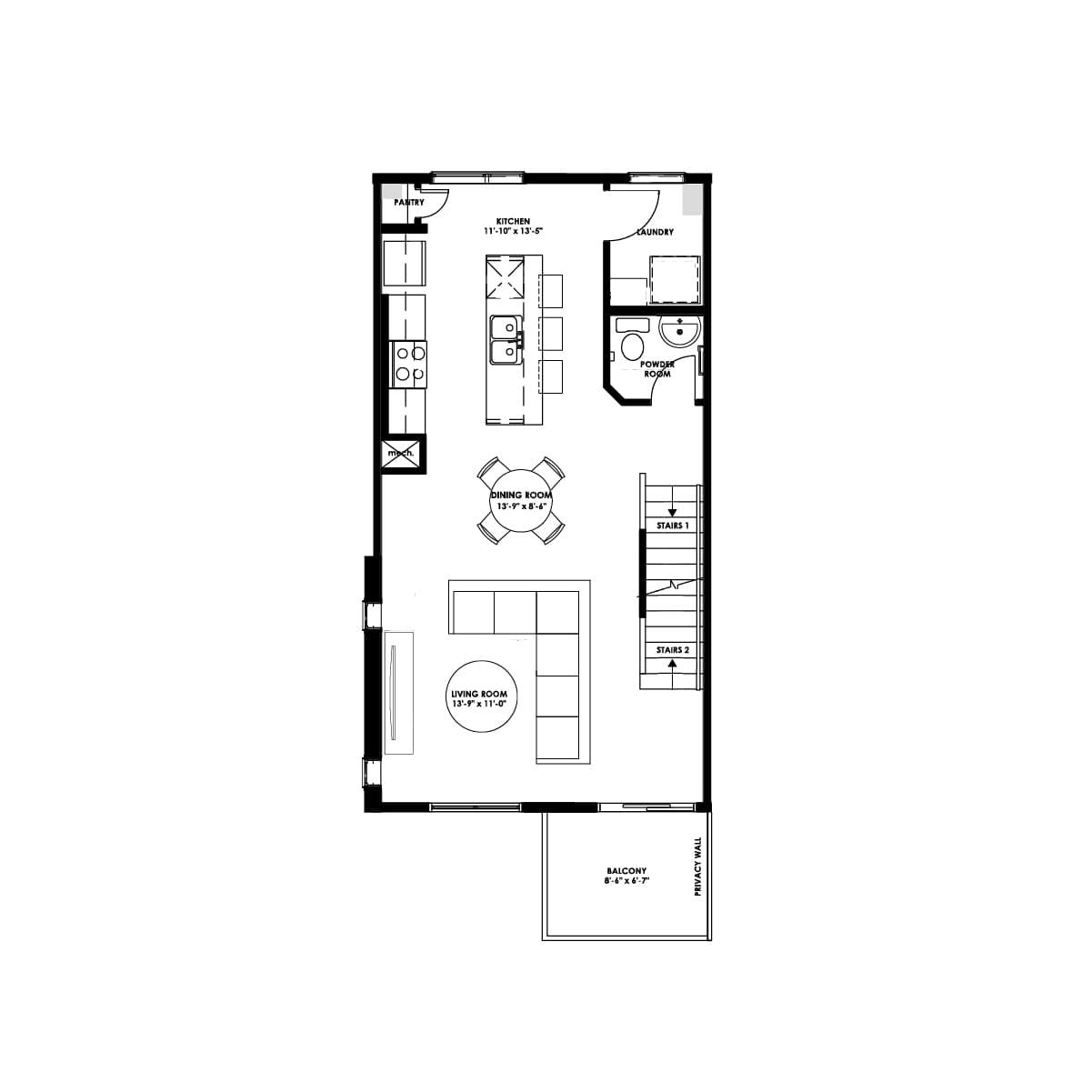
The Harebell offers 1,407 sq. ft. of thoughtfully crafted space across three levels, designed to suit the pace of modern life. This three-bedroom, three-bathroom townhome is part of Rhythm at Taza Park, where nature, city access, and community connection come together just minutes from downtown Calgary.
On the entry level, a private garage and welcoming foyer set the stage for the home’s smart, functional layout. Upstairs, the main floor opens into a bright, flowing space that brings together the kitchen, dining, and living areas. Optional upgrades, including an electric fireplace and enclosed flex room, offer extra comfort and flexibility.
The upper level includes three bedrooms, with an available two-bedroom plus office configuration for those who work from home or need additional space. Each detail in the Harebell is designed for everyday ease - offering plenty of room to live, work, and unwind.
On the entry level, a private garage and welcoming foyer set the stage for the home’s smart, functional layout. Upstairs, the main floor opens into a bright, flowing space that brings together the kitchen, dining, and living areas. Optional upgrades, including an electric fireplace and enclosed flex room, offer extra comfort and flexibility.
The upper level includes three bedrooms, with an available two-bedroom plus office configuration for those who work from home or need additional space. Each detail in the Harebell is designed for everyday ease - offering plenty of room to live, work, and unwind.
The Harebell offers 1,407 sq. ft. of thoughtfully crafted space across three levels, designed to suit the pace of modern life. This three-bedroom, three-bathroom townhome is part of Rhythm at Taza Park, where nature, city access, and community connection come together just minutes from downtown Calgary.
On the entry level, a private garage and welcoming foyer set the stage for the home’s smart, functional layout. Upstairs, the main floor opens into a bright, flowing space that brings together the kitchen, dining, and living areas. Optional upgrades, including an electric fireplace and enclosed flex room, offer extra comfort and flexibility.
The upper level includes three bedrooms, with an available two-bedroom plus office configuration for those who work from home or need additional space. Each detail in the Harebell is designed for everyday ease - offering plenty of room to live, work, and unwind.Read More
On the entry level, a private garage and welcoming foyer set the stage for the home’s smart, functional layout. Upstairs, the main floor opens into a bright, flowing space that brings together the kitchen, dining, and living areas. Optional upgrades, including an electric fireplace and enclosed flex room, offer extra comfort and flexibility.
The upper level includes three bedrooms, with an available two-bedroom plus office configuration for those who work from home or need additional space. Each detail in the Harebell is designed for everyday ease - offering plenty of room to live, work, and unwind.Read More
Facts & features
Stories:
3-story
Parking/Garage:
2
Feel Right at Home
Showhome 3D Walkthroughs
Floor Plan & ExteriorPersonalization OptionsGet a head start on your dream home with our interactive home visualizer - configure everything from the scructural options to selecting finishes.
Meet your new neighborhood














