1 OF 2
Fitzgerald Plan
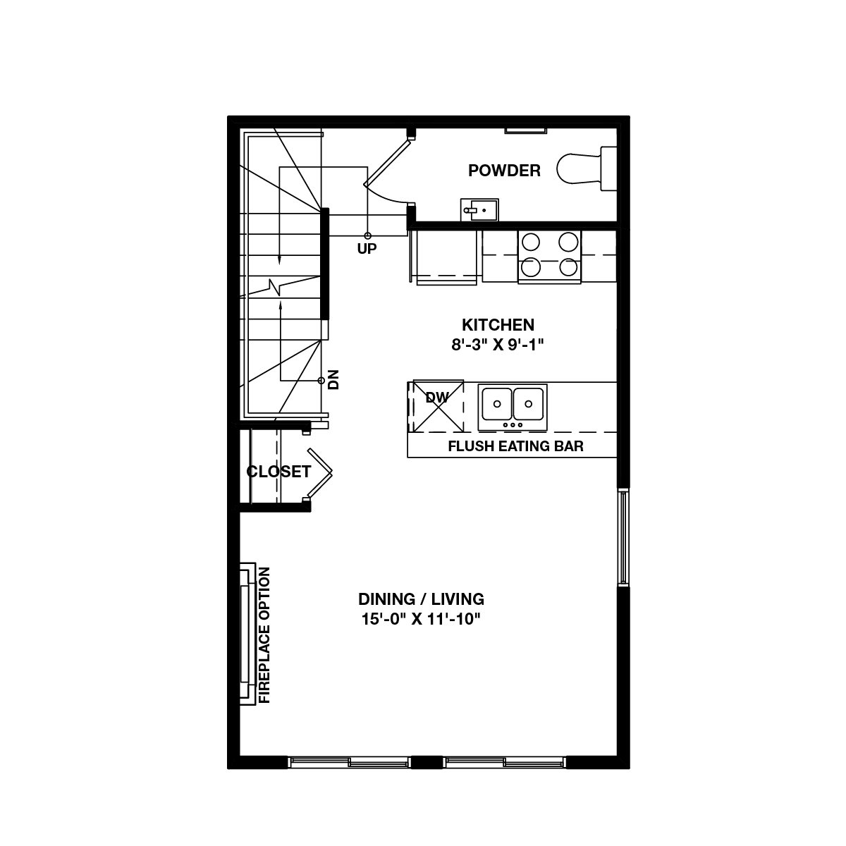
Townhome
904 ft ²
2beds
3
baths
Step into the Fitzgerald, a vibrant and spacious 904 sq. ft. townhome at Range. This breathtaking space features two bedrooms, each with their own unique charm. Experience comfort and functionality with a one-car garage. Immerse yourself in the open concept living and dining area, perfect for hosting friends and family.
Step into the Fitzgerald, a vibrant and spacious 904 sq. ft. townhome at Range. This breathtaking space features two bedrooms, each with their own unique charm. Experience comfort and functionality with a one-car garage. Immerse yourself in the open concept living and dining area, perfect for hosting friends and family.Read More
Facts & features
Parking/Garage:
1
Floor Plan & ExteriorPersonalization OptionsGet a head start on your dream home with our interactive home visualizer - configure everything from the scructural options to selecting finishes.
Meet your new neighborhood




