46 5750 Dene Way
Calgary, AB T3T 0E6
Townhome
1130 ft ²
2beds
3
baths
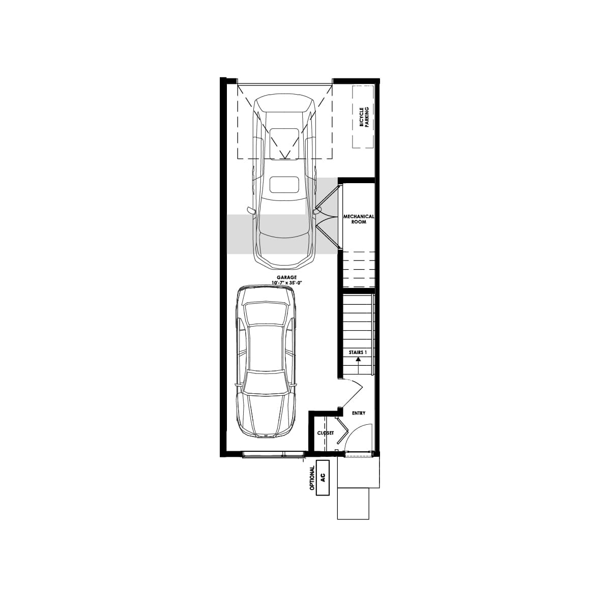
The Geranium delivers 1,130 sq. ft. of modern, three-level living, offering efficient design without compromising on style. This two-bedroom, three-bathroom townhome is part of Rhythm at Taza Park, a vibrant, well-connected community just 10 minutes from downtown Calgary.
Step inside through the private entryway and head up to the main floor, where a bright, open-concept layout connects the kitchen, dining, and living areas. Smart design choices make the most of every inch, and the optional enclosed flex room adds versatility to fit your lifestyle.
Upstairs, two well-appointed bedrooms each feature their own bathroom, creating ideal spaces for privacy and convenience. With upper-level laundry and stylish finishes throughout, the Geranium offers low-maintenance, lock-and-leave living with a modern edge - perfect for first-time buyers, downsizers, or anyone seeking simplicity and connection.
PLEASE NOTE: Photos, Video and Virtual Tour are of a similar model and not fully representative of this home.
Step inside through the private entryway and head up to the main floor, where a bright, open-concept layout connects the kitchen, dining, and living areas. Smart design choices make the most of every inch, and the optional enclosed flex room adds versatility to fit your lifestyle.
Upstairs, two well-appointed bedrooms each feature their own bathroom, creating ideal spaces for privacy and convenience. With upper-level laundry and stylish finishes throughout, the Geranium offers low-maintenance, lock-and-leave living with a modern edge - perfect for first-time buyers, downsizers, or anyone seeking simplicity and connection.
PLEASE NOTE: Photos, Video and Virtual Tour are of a similar model and not fully representative of this home.
The Geranium delivers 1,130 sq. ft. of modern, three-level living, offering efficient design without compromising on style. This two-bedroom, three-bathroom townhome is part of Rhythm at Taza Park, a vibrant, well-connected community just 10 minutes from downtown Calgary.
Step inside through the private entryway and head up to the main floor, where a bright, open-concept layout connects the kitchen, dining, and living areas. Smart design choices make the most of every inch, and the optional enclosed flex room adds versatility to fit your lifestyle.
Upstairs, two well-appointed bedrooms each feature their own bathroom, creating ideal spaces for privacy and convenience. With upper-level laundry and stylish finishes throughout, the Geranium offers low-maintenance, lock-and-leave living with a modern edge - perfect for first-time buyers, downsizers, or anyone seeking simplicity and connection.
PLEASE NOTE: Photos, Video and Virtual Tour are of a similar model and not fully representative of this home.Read More
Step inside through the private entryway and head up to the main floor, where a bright, open-concept layout connects the kitchen, dining, and living areas. Smart design choices make the most of every inch, and the optional enclosed flex room adds versatility to fit your lifestyle.
Upstairs, two well-appointed bedrooms each feature their own bathroom, creating ideal spaces for privacy and convenience. With upper-level laundry and stylish finishes throughout, the Geranium offers low-maintenance, lock-and-leave living with a modern edge - perfect for first-time buyers, downsizers, or anyone seeking simplicity and connection.
PLEASE NOTE: Photos, Video and Virtual Tour are of a similar model and not fully representative of this home.Read More
Facts & features
Stories:
3-story
Parking/Garage:
1
Feel Right at Home
Explore 3D Walkthrough Tours of this Home
Floor Plan & ExteriorExplore your spaceGet to know the ins and outs of this home with our interactive home visualizer
Meet your new neighborhood
Area & Availability Map
Explore the community
Get to know Rhythm at Taza Park
Brookfield Residential
Similar Homes
Brookfield Residential












