274 Paterson Link SW
Edmonton, AB T6W 3R1
Get DirectionsSingle-Family
1722 ft ²
3beds
3
baths
This home features a fully legal 2-bedroom basement suite with 9' foundation walls, a separate entrance, 150 AMP service, and its own stainless steel kitchen appliances—including a gas range. Whether you're looking for rental income or multigenerational living, this suite offers the flexibility you need.
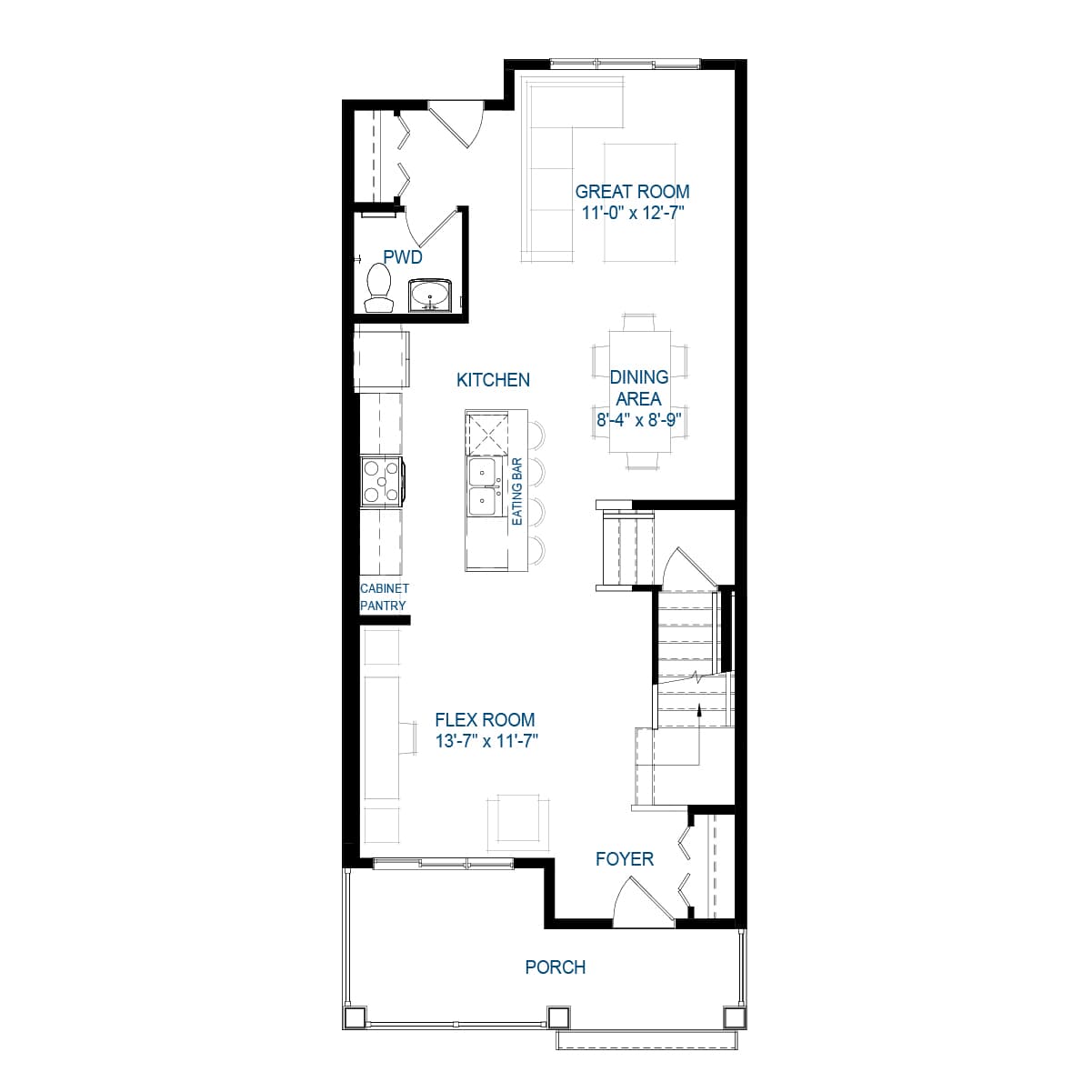
Upstairs, the main floor offers 9' ceilings, a bedroom with a full bathroom and standing shower, and a spacious living area complete with a modern electric fireplace. The designer kitchen is equipped with a French door fridge, chimney hood fan, built-in microwave, gas range, and quartz countertops with undermount sinks throughout.
Enjoy an oversized southwest-facing yard, a 20’ x 20’ parking pad, and included front landscaping. With a rough-in for a future A/C unit, curated interior finishes, a concierge moving service, and the MyHome 3-Year Maintenance Program, this home combines thoughtful design with long-term value. Plus, you’re just steps from Paisley’s off-leash dog park, playground, and greenspaces.
Home Features:
- Legal basement suite with 9’ foundation walls, includes stainless steel kitchen appliances (gas range)
- Steps from Paisley’s off-leash dog park, playground, and greenspaces
- Oversized south west facing yard
- 20’ x 20’ parking pad and front landscaping included
- Enclosed side entrance and 150 AMP service
- Rough-in for future A/C unit
- 9’ ceilings on main floor
- Designer kitchen package including French door fridge with internal ice and water, dishwasher, gas range, built-in microwave, and chimney hood fan
- Modern electric fireplace in the living room
- 3cm quartz and undermount sinks in kitchen and bathrooms
- Upgraded glass shower with seat in upper floor ensuite
- Concierge moving service
- MyHome 3-year maintenance program
- Curated interior finishes by professional interior designers
PLEASE NOTE: Photos, Video and Virtual Tour are of a similar model and not fully representative of this home.
Upstairs, the main floor offers 9' ceilings, a bedroom with a full bathroom and standing shower, and a spacious living area complete with a modern electric fireplace. The designer kitchen is equipped with a French door fridge, chimney hood fan, built-in microwave, gas range, and quartz countertops with undermount sinks throughout.
Enjoy an oversized southwest-facing yard, a 20’ x 20’ parking pad, and included front landscaping. With a rough-in for a future A/C unit, curated interior finishes, a concierge moving service, and the MyHome 3-Year Maintenance Program, this home combines thoughtful design with long-term value. Plus, you’re just steps from Paisley’s off-leash dog park, playground, and greenspaces.
Home Features:
- Legal basement suite with 9’ foundation walls, includes stainless steel kitchen appliances (gas range)
- Steps from Paisley’s off-leash dog park, playground, and greenspaces
- Oversized south west facing yard
- 20’ x 20’ parking pad and front landscaping included
- Enclosed side entrance and 150 AMP service
- Rough-in for future A/C unit
- 9’ ceilings on main floor
- Designer kitchen package including French door fridge with internal ice and water, dishwasher, gas range, built-in microwave, and chimney hood fan
- Modern electric fireplace in the living room
- 3cm quartz and undermount sinks in kitchen and bathrooms
- Upgraded glass shower with seat in upper floor ensuite
- Concierge moving service
- MyHome 3-year maintenance program
- Curated interior finishes by professional interior designers
PLEASE NOTE: Photos, Video and Virtual Tour are of a similar model and not fully representative of this home.
This home features a fully legal 2-bedroom basement suite with 9' foundation walls, a separate entrance, 150 AMP service, and its own stainless steel kitchen appliances—including a gas range. Whether you're looking for rental income or multigenerational living, this suite offers the flexibility you need.
Upstairs, the main floor offers 9' ceilings, a bedroom with a full bathroom and standing shower, and a spacious living area complete with a modern electric fireplace. The designer kitchen is equipped with a French door fridge, chimney hood fan, built-in microwave, gas range, and quartz countertops with undermount sinks throughout.
Enjoy an oversized southwest-facing yard, a 20’ x 20’ parking pad, and included front landscaping. With a rough-in for a future A/C unit, curated interior finishes, a concierge moving service, and the MyHome 3-Year Maintenance Program, this home combines thoughtful design with long-term value. Plus, you’re just steps from Paisley’s off-leash dog park, playground, and greenspaces.
Home Features:
- Legal basement suite with 9’ foundation walls, includes stainless steel kitchen appliances (gas range)
- Steps from Paisley’s off-leash dog park, playground, and greenspaces
- Oversized south west facing yard
- 20’ x 20’ parking pad and front landscaping included
- Enclosed side entrance and 150 AMP service
- Rough-in for future A/C unit
- 9’ ceilings on main floor
- Designer kitchen package including French door fridge with internal ice and water, dishwasher, gas range, built-in microwave, and chimney hood fan
- Modern electric fireplace in the living room
- 3cm quartz and undermount sinks in kitchen and bathrooms
- Upgraded glass shower with seat in upper floor ensuite
- Concierge moving service
- MyHome 3-year maintenance program
- Curated interior finishes by professional interior designers
PLEASE NOTE: Photos, Video and Virtual Tour are of a similar model and not fully representative of this home. Read More
Upstairs, the main floor offers 9' ceilings, a bedroom with a full bathroom and standing shower, and a spacious living area complete with a modern electric fireplace. The designer kitchen is equipped with a French door fridge, chimney hood fan, built-in microwave, gas range, and quartz countertops with undermount sinks throughout.
Enjoy an oversized southwest-facing yard, a 20’ x 20’ parking pad, and included front landscaping. With a rough-in for a future A/C unit, curated interior finishes, a concierge moving service, and the MyHome 3-Year Maintenance Program, this home combines thoughtful design with long-term value. Plus, you’re just steps from Paisley’s off-leash dog park, playground, and greenspaces.
Home Features:
- Legal basement suite with 9’ foundation walls, includes stainless steel kitchen appliances (gas range)
- Steps from Paisley’s off-leash dog park, playground, and greenspaces
- Oversized south west facing yard
- 20’ x 20’ parking pad and front landscaping included
- Enclosed side entrance and 150 AMP service
- Rough-in for future A/C unit
- 9’ ceilings on main floor
- Designer kitchen package including French door fridge with internal ice and water, dishwasher, gas range, built-in microwave, and chimney hood fan
- Modern electric fireplace in the living room
- 3cm quartz and undermount sinks in kitchen and bathrooms
- Upgraded glass shower with seat in upper floor ensuite
- Concierge moving service
- MyHome 3-year maintenance program
- Curated interior finishes by professional interior designers
PLEASE NOTE: Photos, Video and Virtual Tour are of a similar model and not fully representative of this home. Read More
Facts & features
Stories:
2-story
Feel Right at Home
Explore 3D Walkthrough Tours of this Home
Floor Plan & ExteriorExplore your spaceGet to know the ins and outs of this home with our interactive home visualizer
Meet your new neighborhood
Area & Availability Map
Explore the community
Get to know Paisley
Brookfield Residential
Similar Homes
Brookfield Residential













