2331 Muckleplum Way SW
Edmonton, AB T6X 2M8
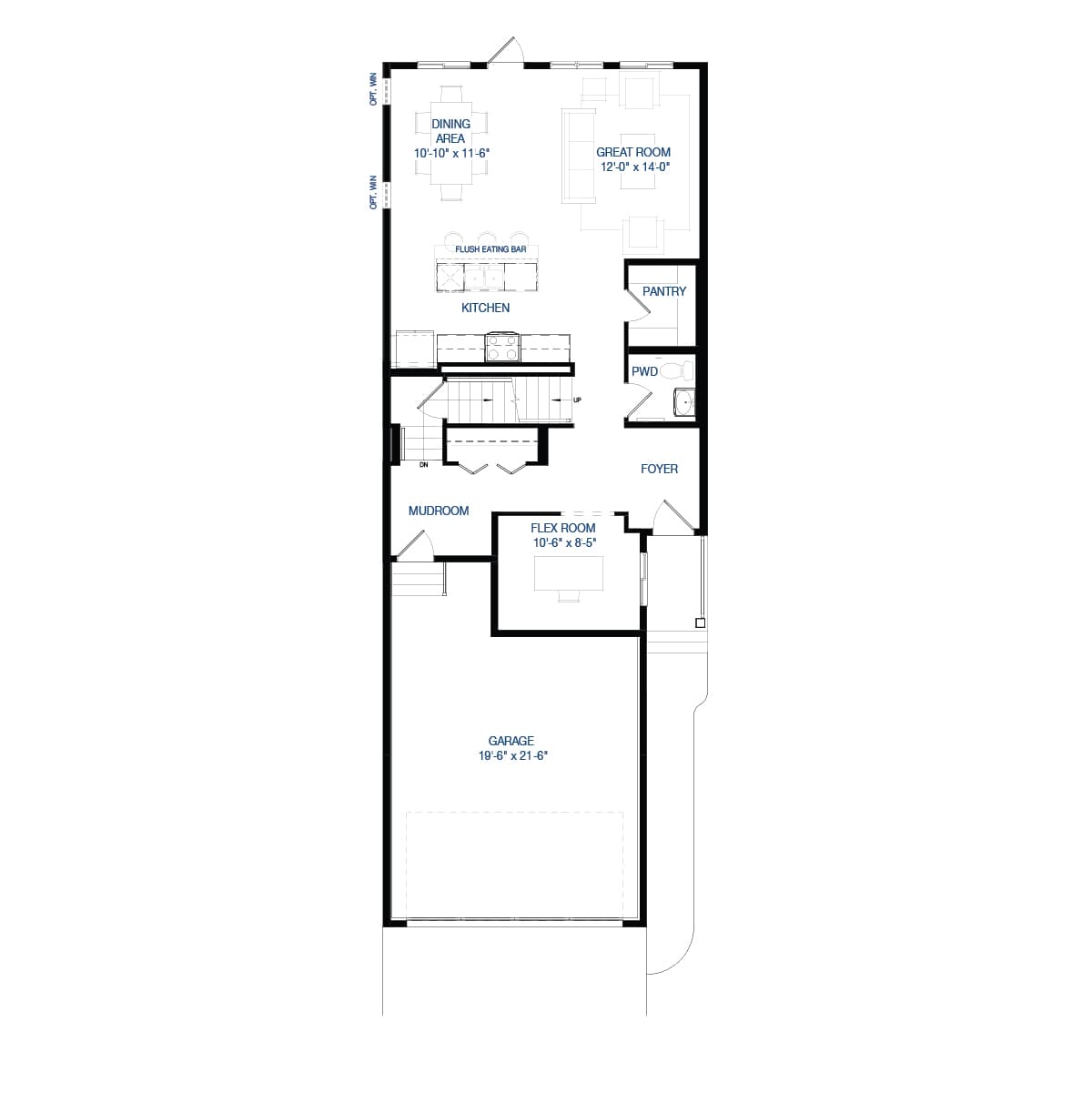
Get DirectionsThe Sierra 24 is a thoughtfully designed home that combines functionality and modern style. The heart of the home features a centrally located kitchen, perfect for cooking and entertaining, complete with a spacious pantry for extra storage. Adjacent to the kitchen is a rear dining area that seamlessly flows into a spacious great room, making it ideal for gatherings. A well-appointed mudroom offers practical storage and keeps your main living areas organized. This home includes an upgraded main floor bedroom.
Upstairs, the large primary bedroom serves as a private retreat, complete with a luxurious primary bathroom and ample closet space. For added privacy, two additional bedrooms are located on the opposite side of the home. The layout includes a convenient bonus room situated near the primary bedroom, offering flexibility for relaxation, hobbies, or a media room. A dedicated upstairs laundry room enhances convenience and functionality.
The Sierra 24 adapts to your lifestyle needs, providing a perfect balance of comfort and versatility.
Two Schools, Walking Trails and the Orchards Club House
• Single Family Front Attached Garage Home Located on Muckleplum Way, Just Steps From Two Schools, Walking Trails and the Orchards Club House
• Conventional Lot, Backing GREENSPACE with a SOUTH FACING yard
• Side Entrance with Privacy Enclosure
• Main Floor Bedroom & Full Bath w. Standing Glass Shower
• Designer Kitchen Package Including a French Door Fridge w/ Internal Ice and Water, Dishwasher, Gas Range, Built-In Microwave & Chimney Hood Fan
• Additional Side Windows in The Dining Room and the Upper Bonus Room
• 50” Electric Fireplace in the Living Room
• Spindle Railing on the Staircase to Replace Stubwall, Including the Bonus Room
• 5 pc Primary Ensuite Including Dual Vanities, Tub, Glass Shower and Toilet
3cm Quartz Countertops Throughout
• Luxury Vinyl Plank on Main Floor
• Ceramic Tile Upstairs: Main Bath, Ensuite and Laundry
• Front Landscaping Included
• Triple Pane Windows Throughout
• 2 Speed, High Efficiency Furnace
PLEASE NOTE: Photos, Video and Virtual Tour are of a similar mode and not fully representative of this home.
The Sierra 24 is a thoughtfully designed home that combines functionality and modern style. The heart of the home features a centrally located kitchen, perfect for cooking and entertaining, complete with a spacious pantry for extra storage. Adjacent to the kitchen is a rear dining area that seamlessly flows into a spacious great room, making it ideal for gatherings. A well-appointed mudroom offers practical storage and keeps your main living areas organized. This home includes an upgraded main floor bedroom.
Upstairs, the large primary bedroom serves as a private retreat, complete with a luxurious primary bathroom and ample closet space. For added privacy, two additional bedrooms are located on the opposite side of the home. The layout includes a convenient bonus room situated near the primary bedroom, offering flexibility for relaxation, hobbies, or a media room. A dedicated upstairs laundry room enhances convenience and functionality.
The Sierra 24 adapts to your lifestyle needs, providing a perfect balance of comfort and versatility.
Two Schools, Walking Trails and the Orchards Club House
• Single Family Front Attached Garage Home Located on Muckleplum Way, Just Steps From Two Schools, Walking Trails and the Orchards Club House
• Conventional Lot, Backing GREENSPACE with a SOUTH FACING yard
• Side Entrance with Privacy Enclosure
• Main Floor Bedroom & Full Bath w. Standing Glass Shower
• Designer Kitchen Package Including a French Door Fridge w/ Internal Ice and Water, Dishwasher, Gas Range, Built-In Microwave & Chimney Hood Fan
• Additional Side Windows in The Dining Room and the Upper Bonus Room
• 50” Electric Fireplace in the Living Room
• Spindle Railing on the Staircase to Replace Stubwall, Including the Bonus Room
• 5 pc Primary Ensuite Including Dual Vanities, Tub, Glass Shower and Toilet
3cm Quartz Countertops Throughout
• Luxury Vinyl Plank on Main Floor
• Ceramic Tile Upstairs: Main Bath, Ensuite and Laundry
• Front Landscaping Included
• Triple Pane Windows Throughout
• 2 Speed, High Efficiency Furnace
PLEASE NOTE: Photos, Video and Virtual Tour are of a similar mode and not fully representative of this home.
Read MoreFacts & features
Stories:
2-story
Parking/Garage:
2
Feel Right at Home
Explore 3D Walkthrough Tours of this Home
Meet your new neighborhood















